DETAILS
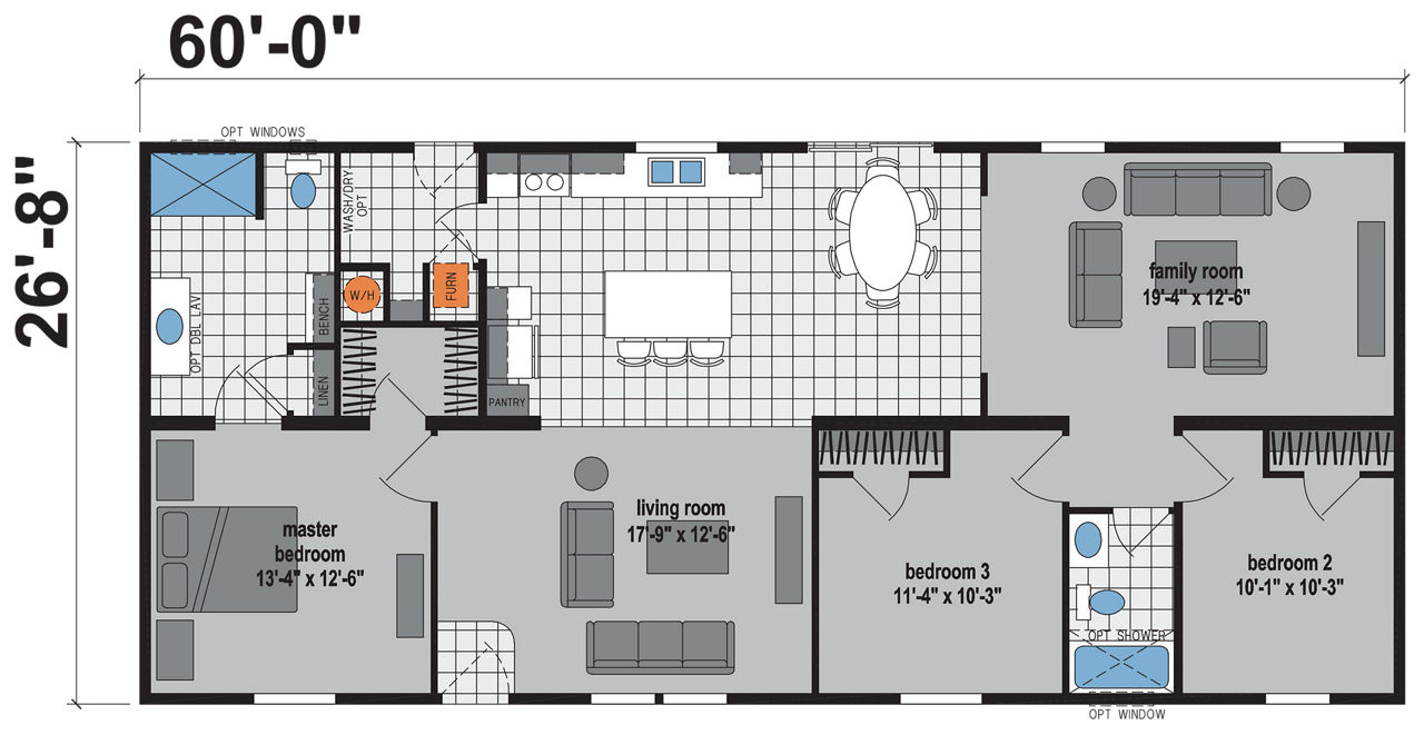
Special OrderThe Prairie Dune 8808J 'The Turnpike' is a spacious 1,600 sq. ft. multi-section manufactured home featuring 3 bedrooms and 2 bathrooms, designed to meet HUD code standards. Its thoughtful layout includes a welcoming family area highlighted by a cozy fireplace, an open kitchen with a central island, and the convenience of a utility room and basement stairs for added storage or expansion potential. The primary suite offers a comfortable retreat with a walk-in shower, while the open flow of the living, dining, and kitchen spaces encourages modern family living.
HOME FEATURES
Family Area
Kitchen Island
Utility Room
Fireplace
Basement Stairs
Master Ensuite with Walk-in Shower
Property Highlights:
3
Beds
2
Baths
1600
Sq Ft
26x60
Size
Featured Homes
Find Your Ideal Home
Search Let’s get started. Find your dream home today!
3 Beds
1116 Sq Ft
2 Baths
72x15