DETAILS
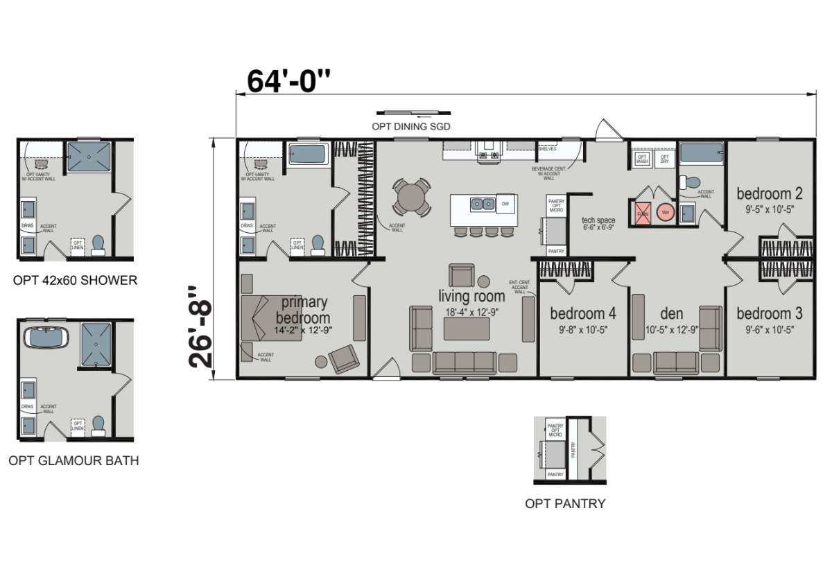
Special OrderThe Embrace 2864H42A7C 'Serenity' is a two-section ranch style home offering 4 bedrooms and 2 bathrooms in approximately 1,707 square feet. The layout features a spacious kitchen with an island and a generous living area, with a private master suite located away from the other bedrooms for enhanced comfort. The wide 26′ 8″ × 64′ footprint allows for open gathering spaces and functional flow, while smart design choices balance style and practicality throughout the home.
HOME FEATURES
Open Concept
Split Bedrooms
Additional Den Area
Tech Space
Utility Room
Kitchen Island with Breakfast Bar
* Advertised starting sales prices are for the home only. Delivery and installation costs are not included unless otherwise stated. Starting prices shown on this website are subject to change, see your local Home Center for current and specific home and pricing information. Sales price does not include other costs such as taxes, title fees, insurance premiums, filing or recording fees, land or improvements to the land, optional home features, optional delivery or installation services, wheels and axles, community or homeowner association fees, or any other items not shown on your Sales Agreement, Retailer Closing Agreement and related documents (your SA/RCA). If you purchase a home, your SA/RCA will show the details of your purchase. Homes available at the advertised sales price will vary by retailer and state. Artists’ renderings of homes are only representations and actual home may vary. Floor plan dimensions are approximate and based on length and width measurements from exterior wall to exterior wall. We invest in continuous product and process improvement. All home series, floor plans, specifications, dimensions, features, materials, and availability shown on this website are subject to change. Images may show options not included in base price. Does not include required taxes, delivery, and installation. Installed price will be higher.
3 Beds
1178 Sq Ft
2 Baths
76x16