DETAILS
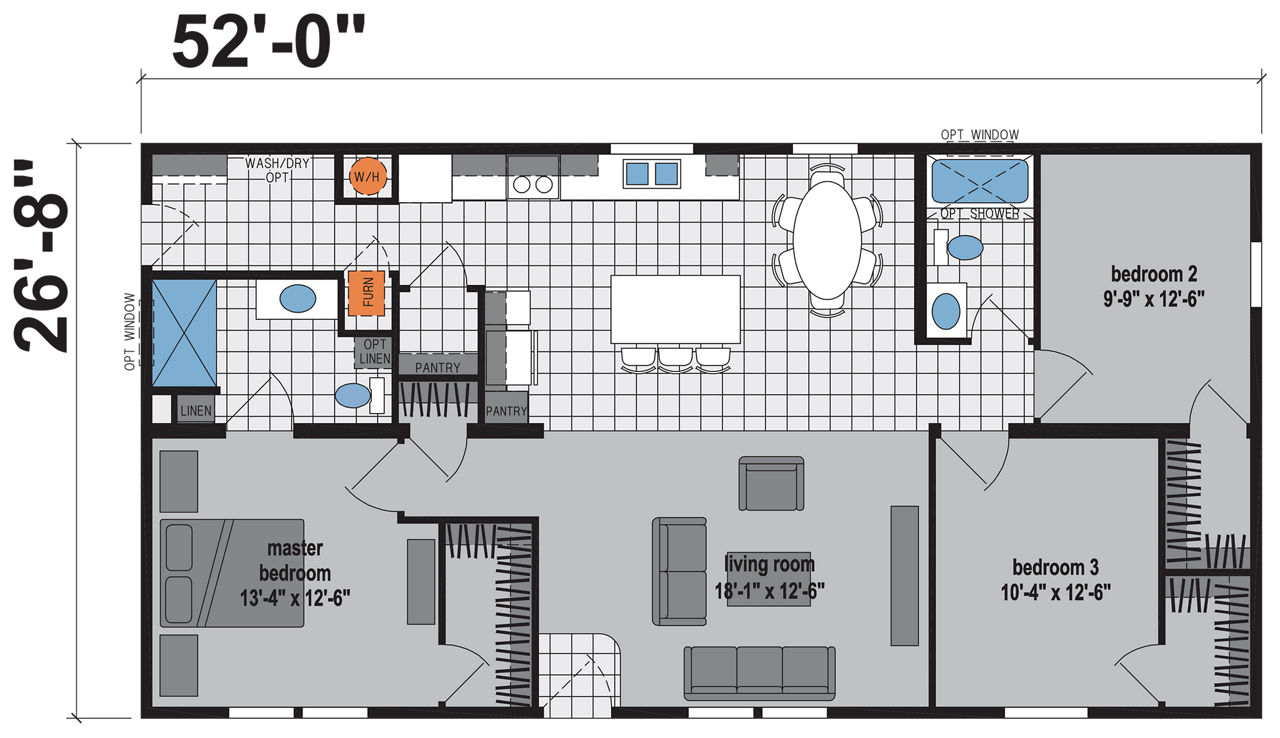
Special OrderThe Prairie Dune 8855 'The Osborne' from Skyline Homes is a spacious multi-section manufactured home offering approximately 1,386 sq. ft. with 3 bedrooms and 2 bathrooms. Built to HUD code standards, it blends comfort and style with standout features such as a walk-in pantry, cozy fireplace, kitchen island, and utility room. The primary suite includes a walk-in shower, while the open layout enhances everyday living. This model is available for tours, financing options are offered, and homebuyers can personalize details like the kitchen and primary bath to fit their lifestyle.
HOME FEATURES
Walk-in Pantry
Kitchen Island
Master Ensuite with Walk-in Shower
Fireplace
Utility Room
Property Highlights:
3
Beds
2
Baths
1386
Sq Ft
26x52
Size
Featured Homes
Find Your Ideal Home
Search Let’s get started. Find your dream home today!
2 Beds
910 Sq Ft
2 Baths
60x15