DETAILS
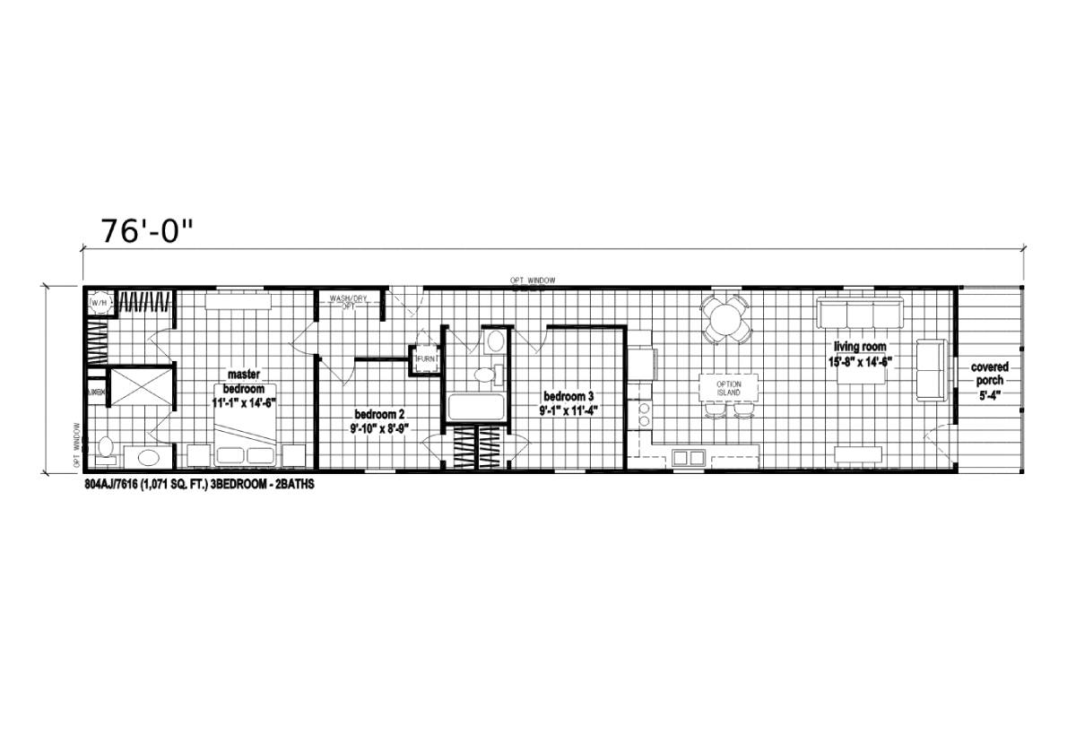
Special OrderThe 8704AJ 'Tammy' is a single-section home featuring 3 bedrooms and 2 bathrooms across approximately 1,071 square feet. Its efficient ranch-style layout opens with a welcoming living room that flows into a modern kitchen, creating a comfortable central hub. The private master suite includes its own full bathroom, while two secondary bedrooms share a second bath on the opposite end of the home. With smart use of space and a practical design, the 8704AJ delivers comfort and functionality in a well-balanced footprint.
HOME FEATURES
Open Concept
Outdoor Porch
Ranch-Style Layout
Utility Area
Master Ensuite with Walk-in Closet
Property Highlights:
3
Beds
2
Baths
1147
Sq Ft
15x76
Size
Featured Homes
Find Your Ideal Home
Search Let’s get started. Find your dream home today!
3 Beds
1031 Sq Ft
2 Baths
68x15