DETAILS
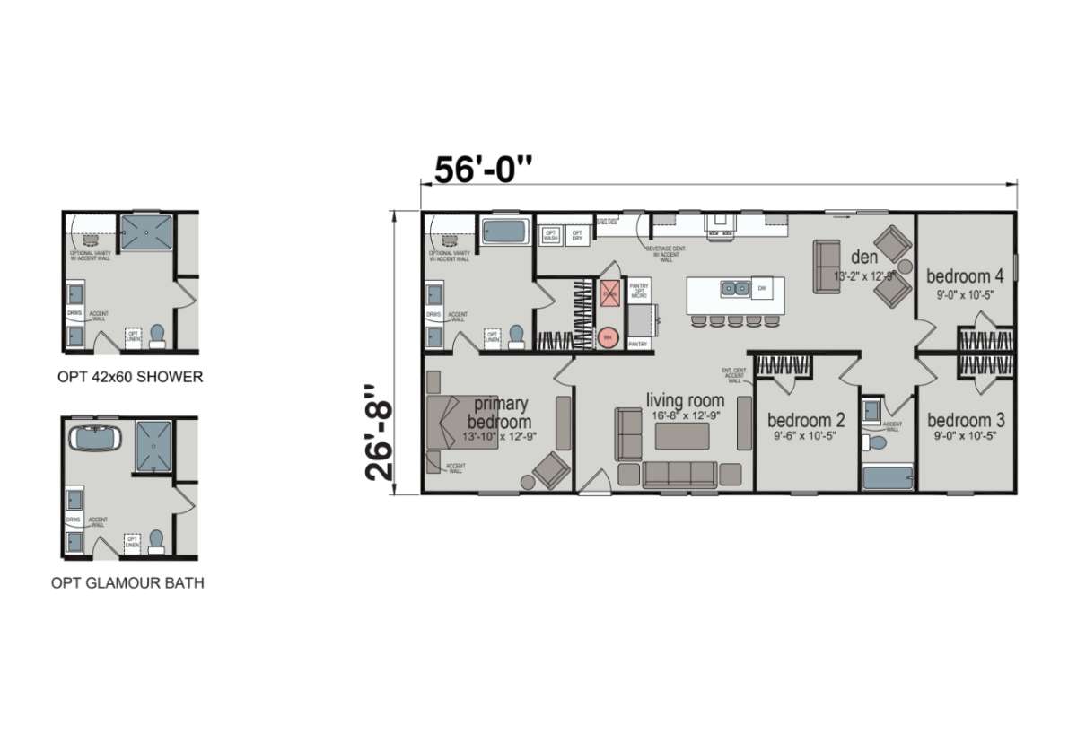
Special OrderThe Embrace 2856H42A7F 'Sunrise' is a thoughtfully designed home with 4 bedrooms and 2 bathrooms, spanning 1,493 square feet in a 26′8″ × 56′0″ layout. It features a large open living area flowing into a well-appointed kitchen, while the master suite includes a private bath. Ideal for growing families or those needing extra space, this plan balances efficiency and comfort in a stylish, functional footprint.
HOME FEATURES
Open Concept
Split Bedrooms
Additional Den Area
Kitchen Island with Breakfast Bar
Utility Area
Master Ensuite with Double-Sink Vanity
Property Highlights:
4
Beds
2
Baths
1493
Sq Ft
28x56
Size
Featured Homes
Find Your Ideal Home
Search Let’s get started. Find your dream home today!
3 Beds
1152 Sq Ft
2 Baths
76x16