DETAILS
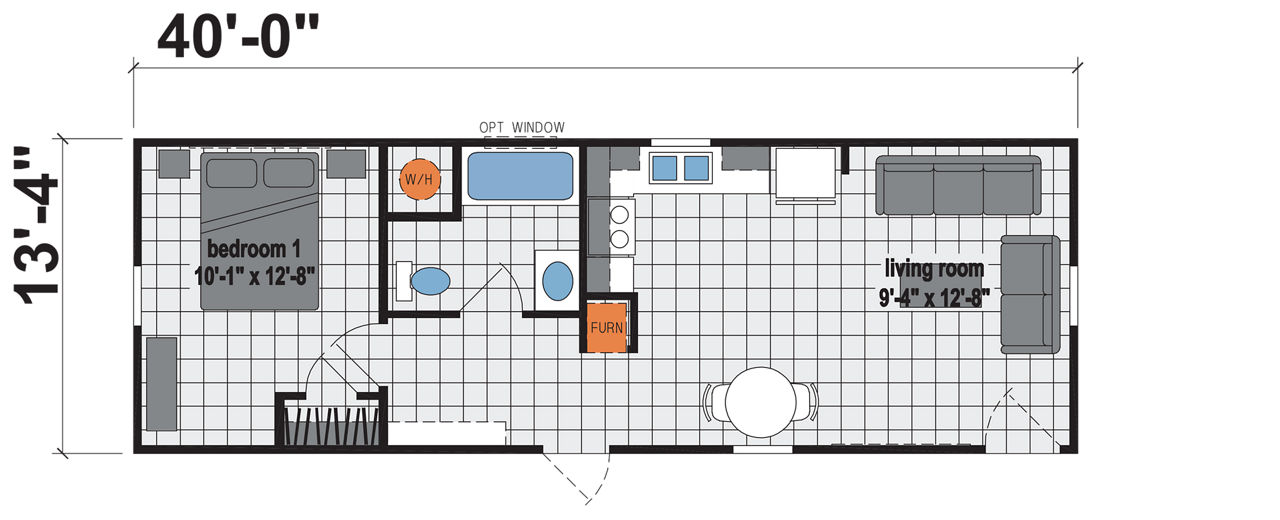
Special OrderThe Prairie Dune 8312 'Hank' by Skyline Homes is a compact, efficiently designed single-section home offering about 533 sq. ft. with 1 bedroom and 1 bathroom. Its footprint is 14′ × 40′, making it ideal for situations where space is limited. Though modest in size, it includes a cathedral ceiling, an open living area, a modern kitchen with stainless steel double bowl sink, full appliance provisions, and a large full bathroom. Built under the HUD code, the 8312 features standard construction including 2×4 stud walls, vinyl lap siding, Low-E single-hung windows, R-11 insulation in walls and floors, and R-19 insulation in the ceiling.
HOME FEATURES
Open Concept
Ceiling Fan
Garden Tub + Shower Combo
Spacious Living Area
Property Highlights:
1
Beds
1
Baths
533
Sq Ft
13x40
Size
Featured Homes
Find Your Ideal Home
Search Let’s get started. Find your dream home today!
1 Beds
533 Sq Ft
1 Baths
40x13