DETAILS
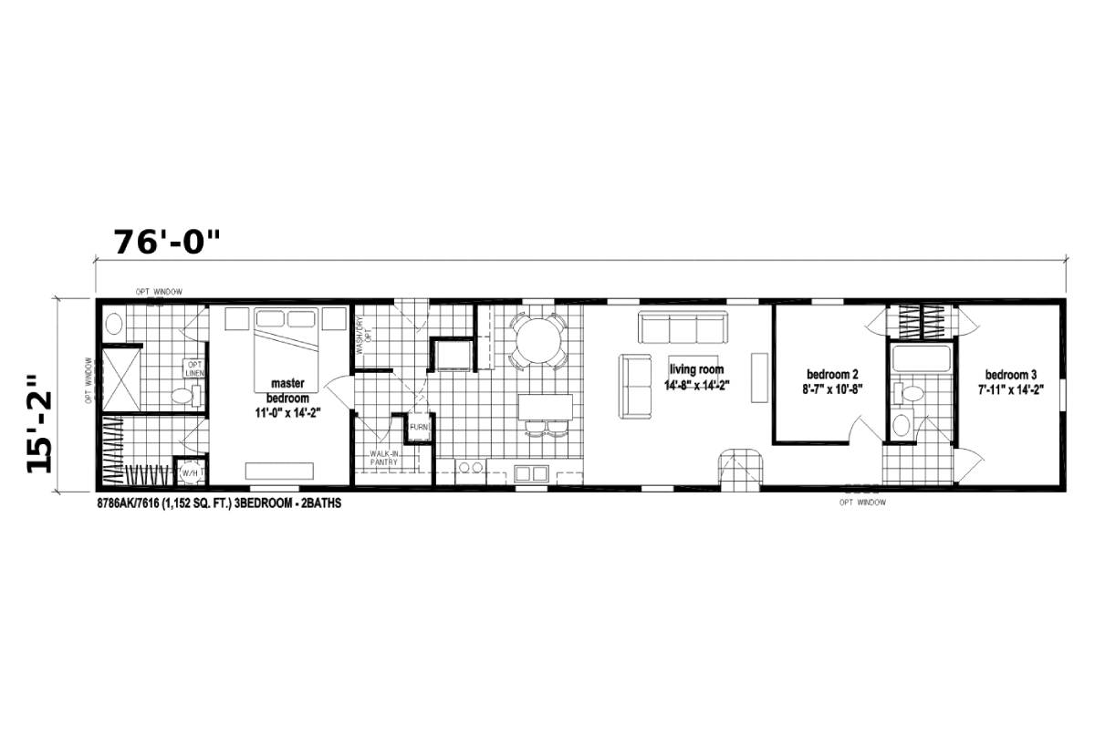
Special OrderThe Prairie Dune 8786AK 'Martina' is a well-proportioned single-section home offering 3 bedrooms and 2 bathrooms in approximately 1,152 square feet with a 15′2″ × 76′0″ layout. Its design features a centrally located living and dining area that flows into the kitchen and utility space, creating an open and welcoming hub for everyday living. The master suite is situated on one end for added privacy, while the two secondary bedrooms and the second bath are on the opposite side, making this layout ideal for families or shared living.
HOME FEATURES
Open Concept
Spacious Living Area
Kitchen Island with Breakfast Bar
Laundry Room
Walk-in Pantry
Property Highlights:
3
Beds
2
Baths
1152
Sq Ft
16x76
Size
Featured Homes
Find Your Ideal Home
Search Let’s get started. Find your dream home today!
3 Beds
1013 Sq Ft
2 Baths
76x13