DETAILS
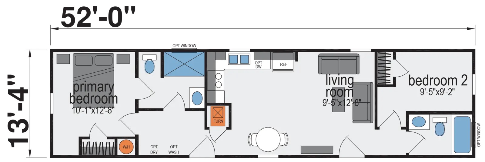
Special OrderThe 8313AJ 'Patsy' is a compact manufactured home offering 2 bedrooms and 2 bathrooms within 686 square feet in a single-section layout. Its design emphasizes efficiency and comfortable living in a smaller footprint. Open common areas connect the living room, dining space, and kitchen, while each bedroom has its own dedicated bathroom, making this model especially suited for couples, downsizers, or as a vacation or secondary home.
HOME FEATURES
Open Concept
Efficient Layout
Utility Area
Master Ensuite with Walk-in Shower
Property Highlights:
2
Beds
2
Baths
686
Sq Ft
13x52
Size
Featured Homes
Find Your Ideal Home
Search Let’s get started. Find your dream home today!
2 Beds
910 Sq Ft
2 Baths
60x15